Lifted79CJ7 XJ frame I also have the TJ frame in PDF format. PM me if you want me to email it to you.
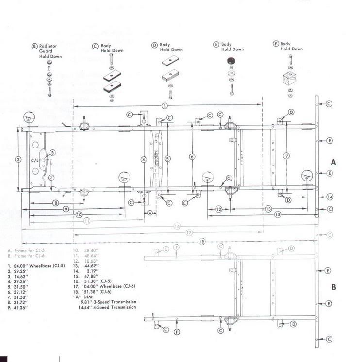
FSJer A great way to check to see if your chassis is straight before you do all your suspension modications. does anyone have any on a FSJ of different years ?
Penguin I think I might have them up to 1982. If they were included with the other jeeps I have it. I collect FSM's. I have from 1973-1990. The later years of course are just the SWBs. PM me if you want a pic, it will take a day or two to get it.